Groundbreaking for new Vienna Elementary set for Wednesday
- Artist renderings from McKinley Architecture and Engineering of what the new Vienna Elementary School could look like after construction. Officials said the new school will feature a modern design focused on safety, traffic flow, accessibility and updated learning environments for roughly 522 students. (Image Provided)
- Artist renderings from McKinley Architecture and Engineering of what the new Vienna Elementary School could look like after construction. Officials said the new school will feature a modern design focused on safety, traffic flow, accessibility and updated learning environments for roughly 522 students. (Image Provided)
- Artist renderings from McKinley Architecture and Engineering of what the new Vienna Elementary School could look like after construction. Officials said the new school will feature a modern design focused on safety, traffic flow, accessibility and updated learning environments for roughly 522 students. (Image Provided)
- A new access road is being built off of 12th Street in Vienna, left arrow, to make it easier to reach the new Vienna Elementary School being built adjacent to West Virginia University at Parkersburg’s new Innovation and Technology Center. Innovation Drive off of Rosemar Road, right arrow, will also lead to the new school. (Photo Provided)
- An aerial drone picture shows the area where the new Vienna Elementary School is being built adjacent to West Virginia University at Parkersburg’s new Innovation and Technology Center. Officials said the new school will feature a modern design focused on safety, traffic flow, accessibility and updated learning environments for roughly 522 students. (Photo Provided)
- An aerial drone picture shows the area where a new access road is being built off of 12th Street in Vienna to make it easier to reach the new Vienna Elementary School being built adjacent to West Virginia University at Parkersburg’s new Innovation and Technology Center. (Photo Provided)
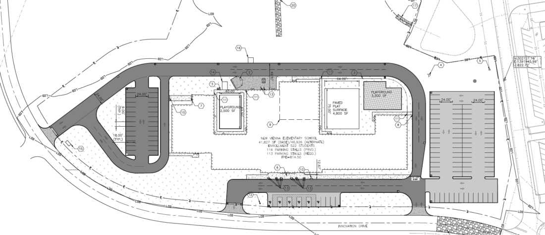
- Blueprints from Pickering Associates show the dimensions of the new Vienna Elementary School being built adjacent to West Virginia University at Parkersburg’s new Innovation and Technology Center. Officials said the new school will feature a modern design focused on safety, traffic flow, accessibility and updated learning environments for roughly 522 students. (Image Provided)

Artist renderings from McKinley Architecture and Engineering of what the new Vienna Elementary School could look like after construction. Officials said the new school will feature a modern design focused on safety, traffic flow, accessibility and updated learning environments for roughly 522 students. (Image Provided)
PARKERSBURG — Representatives from Wood County Schools and Pickering Associates sat down recently to talk about the new Vienna Elementary ahead of a groundbreaking event for the project scheduled for Wednesday.
The groundbreaking is slated for 4 p.m. Wednesday behind West Virginia University at Parkersburg’s new Innovation and Technology Center on the former Ohio Valley University campus.
“We’ve been having these weekly meetings every Monday at two o’clock since 2023,” Superintendent Christie Willis said.
Pickering Associates is the architectural, engineering and design firm on the project. President and CEO Ryan Taylor said these meetings have helped both parties navigate the 22 bond projects the district has going on.
“We’ve been talking about these things and coordinating. It didn’t happen by chance,” Taylor said. “That’s why we are so close to the budget. That’s why we are so close to the deadlines.”

Artist renderings from McKinley Architecture and Engineering of what the new Vienna Elementary School could look like after construction. Officials said the new school will feature a modern design focused on safety, traffic flow, accessibility and updated learning environments for roughly 522 students. (Image Provided)
Originally, the district considered rebuilding the new school at the existing Vienna Elementary site or constructing a new facility at Jackson Park. That changed after concerns about space, traffic, soil conditions and class time interruptions were considered.
“The students at Vienna Elementary would have had to continue going to school in the mobile construction zone. That would not have been ideal,” Willis said.
Officials said the new elementary school promises families a safer, more modern learning environment with updated facilities, improved traffic flow and specialized spaces for students with diverse needs.
It will feature a middle school-sized gym, a second-floor media center and a total of 59,231 square feet of space, designed for a projected enrollment of 522 students.
Willis said the media center is designed as a modern learning hub that moves away from a traditional library while still keeping the feel of a traditional library.

Artist renderings from McKinley Architecture and Engineering of what the new Vienna Elementary School could look like after construction. Officials said the new school will feature a modern design focused on safety, traffic flow, accessibility and updated learning environments for roughly 522 students. (Image Provided)
“Like a library-STEAM combo room, where they can do STEAM activities, but it’s still there to be utilized as a library,” Willis said.
Community concerns about traffic and bus congestion were a recurring theme Pickering addressed in their designs.
“It has a dedicated traffic pattern for buses and parent drop-off to be in separate locations off the road,” Taylor said. “The county has taken an effort to … bring the traffic off of the city streets and onto (school) property to alleviate congestion in the city roads.”
There will also be dedicated drop-offs for both the younger and older students, allowing for a more streamlined and safe entrance to the school each morning, he said.
“If I have two kids in my car, one gets out here, then I keep moving, and then one gets out over here,” Taylor said. “And if my kid rides a bus, I never have interaction with (the kids in the drop-off), because they’re in a different location.”

A new access road is being built off of 12th Street in Vienna, left arrow, to make it easier to reach the new Vienna Elementary School being built adjacent to West Virginia University at Parkersburg’s new Innovation and Technology Center. Innovation Drive off of Rosemar Road, right arrow, will also lead to the new school. (Photo Provided)
Security upgrades are also central to the new design. The building will have a true secure entrance – a feature older schools either lack or have in improvised form, Willis said. Detached “portable” or standalone classrooms, long criticized as unsafe and inconvenient, are also being eliminated.
“There will be no more portables or leaving the building to have to go to a classroom,” Willis said.
She said the new layout keeps students within one connected structure, except for playground time, improving both security and supervision.
Officials said those playground designs are another key upgrade, both for safety and convenience. All equipment will be Americans with Disabilities Act-compliant, and the play areas will be tucked inside the footprint of the building and fenced, with direct classroom access.
“All the playgrounds have been kind of strategically done to be within the back, and they’re enclosed within the building, and on our ground level,” said Heather Grant, director of elementary education. “All the doors have access straight back into the rooms off the playground.”

An aerial drone picture shows the area where the new Vienna Elementary School is being built adjacent to West Virginia University at Parkersburg’s new Innovation and Technology Center. Officials said the new school will feature a modern design focused on safety, traffic flow, accessibility and updated learning environments for roughly 522 students. (Photo Provided)
Willis said this will help with security for students.
“The playground areas are tucked into these coves … so all those doors can open … if they need to get in quickly, or if they need to exit quickly, they can get out,” Willis said.
Designs also have built-in dedicated spaces for students with autism and other special needs.
“So we’ve also put a sensory room near the autism room, a very thoughtful design, and then a dedicated multi-categorical classroom for students that would need those services,” Willis said.
Grant said the sensory room is intended for students who might become overstimulated.

An aerial drone picture shows the area where a new access road is being built off of 12th Street in Vienna to make it easier to reach the new Vienna Elementary School being built adjacent to West Virginia University at Parkersburg’s new Innovation and Technology Center. (Photo Provided)
“To be able to go in, kind of decompress, to recenter and not be in the general classroom,” she said. “We’ll have things that may interest them, from fidgets to lower lighting to areas that they can just kind of calm down in their own space.”
The group said the new elementary will feature a significantly upgraded physical education space, with a gym sized more like what you’d expect at a middle school. They said the larger gym will better accommodate PE classes, assemblies and community events.
The internal layout is also designed so that the gym and cafeteria can be used for evening events while classroom wings remain locked.
“If you come into the front or if you utilize the gym, you can secure the classrooms off so if there’s evening activities, we don’t have the public walking through the building,” Willis said.
The building will be fully ADA-compliant, with central HVAC, upgraded wireless infrastructure and an updated kitchen
“All the elementary schools will be state of the art, whether it is safety, efficiency, technology … everything,” Taylor said.
Redistricting is still in progress and will determine which students attend the new Vienna Elementary versus nearby schools like Greenmont Elementary.
“When we moved from the park, the park was going to encompass more students because of where the location was with the current Vienna (Elementary) students,” Willis said. “Moving the school now down further to the new location on the (WVUP) campus, we’re able to look at the space that was available at Greenmont. … Greenmont is underutilized at this time,”
Willis and Grant said new attendance lines will be finalized next year, after officials review actual enrollment patterns.
“When the students enroll for August, we will see the new lay of the land, because now it’s been two, three years since we started this planning,” Willis said. “So there’s going to be shifts in that population. So we’ll go back and pull everyone’s address in, take a look at where they are, and then decide what the best split is, to make sure that we utilize (Greenmont Elementary) to its capacity, and then what students will go to the new school.”
Construction on the new Vienna Elementary is expected to be finished before the start of the 2027-28 school year.
Douglass Huxley can be reached at dhuxley@newsandsentinel.com

Blueprints from Pickering Associates show the dimensions of the new Vienna Elementary School being built adjacent to West Virginia University at Parkersburg’s new Innovation and Technology Center. Officials said the new school will feature a modern design focused on safety, traffic flow, accessibility and updated learning environments for roughly 522 students. (Image Provided)













